Casa indipendente in vendita

Corbetta, Cascina brambilla
Informazioni in agenzia
3850 Mq 3850 Mq

Casa indipendente in vendita

Corbetta, Cascina brambilla

Descrizione annuncio

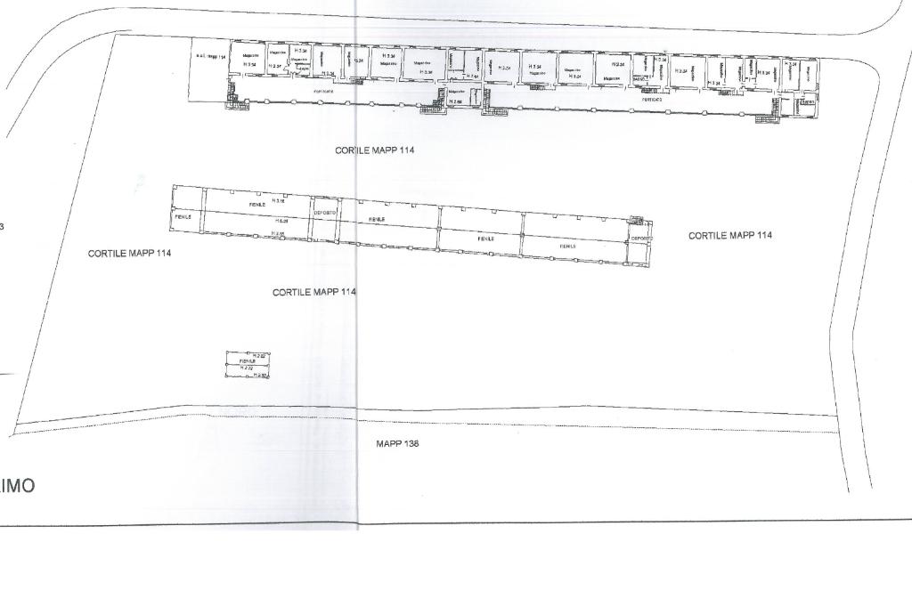
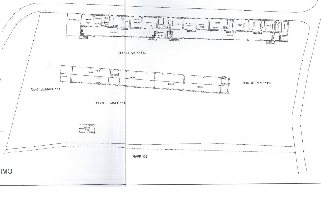
CORBETTA

Intero cascinale agricolo ora residenziale con progetto paesaggistico gia approvato sia dal comune di Corbetta che dal Parco Agricolo Sud di Milano. Inoltre abbiamo bozza di convenzione per l' attuazione del piano di recupero che permette di edificare fino a 48 alloggi di varie metrature.

Da progetto sono previsti 3 corpi residenziali su due piani oltra ad ampia area privata ove è possibile creare giardini privati e posti auto. Il fabbricato è ubicato a circa 1 km dal comune di Corbetta pertanto garantisce per i futuri acquirenti la possibilità di accedere a tutti i servizi senza difficoltà.

Si valutano le seguenti modalità di acquisto:

- tutta liquidità con sconto sul prezzo di acquisto;

- permuta totale con alloggi nell' interland milanese o Milano.

UNA VERA OCCASIONE!!

Mostra tutto

Nelle vicinanze

Trasporto pubblico Trasporto pubblico
stazione di Magenta
stazione di Magenta
3,0 Km
Piazza XXV Aprile (Corbetta)
Piazza XXV Aprile (Corbetta)
40 m
Piazza Beretta
Piazza Beretta
130 m
stazione di Corbetta-Santo Stefano Ticino
stazione di Corbetta-Santo Stefano Ticino
1,3 Km
Scuole Scuole
Istituto Professionale Vasco Mainardi
130 m
Scuola Secondaria di Primo Grado Simone da Corbetta
330 m
Scuola Primaria Villa Favorita
460 m
Scuola Primaria Aldo Moro
570 m
Liceo scientifico statale Donato Bramante
1,7 Km
Farmacia Farmacia
Farmacia Chimica del dottor Berti Carlo & C. Sas
200 m
Farmacia Perre Rosario
250 m
Farmacia del Corso
380 m
Farmacia Comunale 2
610 m
Farmacia Comunale 1
730 m
Ospedali Ospedali
Ospedale Giuseppe Fornaroli
2,0 Km
Supermercati Supermercati
U2
190 m
Sigma Ok
370 m
Penny
720 m
Lidl
810 m
Aldi
1,1 Km
Negozi Negozi
Angolo del Pane
160 m
OVS
580 m
Negozi
650 m
CVG Gold
1,0 Km
Nuvola
2,3 Km
Bar Bar
Bar dello Sport
270 m
Bar
330 m
Tiffany
350 m
Bar Isola
560 m
Angolo Cafè
570 m
Ristoranti Ristoranti
Roadhouse Grill
460 m
Trattoria "Al Campanile"
470 m
La Nuvoletta
510 m
Ristoranti
520 m
Pizzeria Il Cacciatore
550 m
Mostra tutto

Caratteristiche

Rif.:
60845334
Arredamento:
Assente
Condizionamento:
Assente
Ascensore:
No
Riscaldamento:
Assente
Giardino:
Condominiale
Mostra tutto
Prezzo Prezzo
Informazioni in agenzia
Proponi il tuo prezzoProponi il tuo prezzo

Altre caratteristiche

Classe Energetica

Questo immobile è esente da classe energetica
Anno di costruzione:
1967
Riscaldamento:
Assente

Ti interessa visionare l'immobile?

Fissa un appuntamento  Fissa un appuntamento

Richiedi informazioni

* Questi campi sono obbligatori
Affiliato
Studio Mantovani D.I.
Via Mazzini, 16 20011 Corbetta (MI)

Il nostro staff


  • Luca Mantovani
    Affiliato

  • Federica Cislaghi
    Responsabile

  • Manuela Oldani
    Coordinatrice

  • Raffella Castelli
    Collaboratrice

  • Luca Fadda
    Collaboratore

  • Valentina Ferrari
    Coordinatrice

  • Martina Pellegata
    Collaboratrice

  • Andrea Xotta
    Collaboratore
Via Mazzini, 16 20011 Corbetta (MI)
Zona: Corbetta
Mostra su mappa
Orari: DAL LUNEDI' AL VENERDI' 9.00-12.30 / 14.30-19.30. SABATO 09.00-12.30/ 14.30-19.30. DOMENICA SU APPUNTAMENTO.
Affiliato
Studio Mantovani D.I.
Via Mazzini, 16 20011 Corbetta (MI)

2025 Tecnocasa Franchising S.p.A. - P. IVA 08365160152 - Via Monte Bianco 60/A 20089 Rozzano (MI). Ogni agenzia ha un proprio titolare ed è autonoma. Privacy policy | Policy utilizzo | Cookie policy