Villa singola in vendita

Corbetta, Via Costa
€ 397.000
3 locali 3 locali
105 Mq 105 Mq
2 bagni 2 bagni

Villa singola in vendita

Corbetta, Via Costa

Descrizione annuncio

CORBETTA - Villa singola in zona centrale tranquilla e ben servita

In una posizione centrale ma estremamente tranquilla, proponiamo in vendita una villa singola con giardino privato, ideale per chi desidera vivere in un contesto riservato senza rinunciare alla comodità dei servizi.

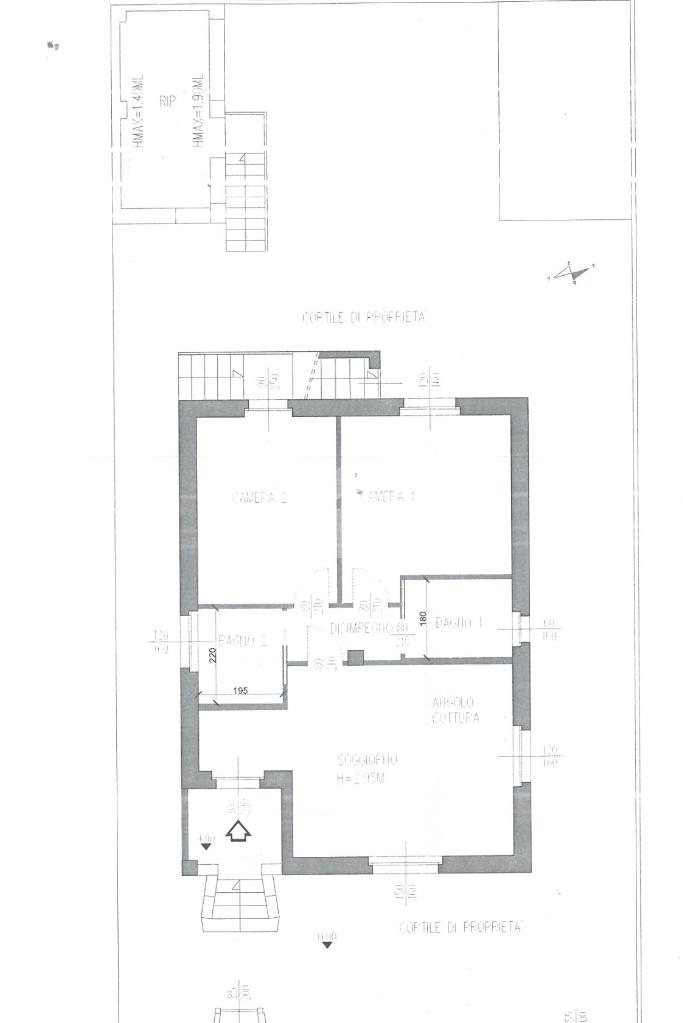
L’abitazione si sviluppa su due livelli. Al piano seminterrato si trovano una spaziosa cantina suddivisa in due locali e un locale tecnico. Al piano rialzato si accede tramite un ingresso indipendente dotato di una porta d’ingresso di alta qualità. Gli ambienti interni comprendono un luminoso soggiorno, una cucina abitabile, due camere da letto e due bagni, con una distribuzione funzionale e accogliente degli spazi.

La villa è dotata di numerosi accessori tra cui: riscaldamento a pavimento, pannelli fotovoltaici, aria condizionata canalizzata, tapparelle elettriche e impianto antifurto

Completano la proprietà un box auto e un locale ripostiglio, disposti su due livelli in corpo staccato. Il giardino privato che circonda la casa offre un prezioso spazio verde per momenti di relax all’aperto.

La zona è ben servita e strategica: nelle immediate vicinanze si trovano un ristorante, un parco giochi e tutti i principali negozi di prima necessità.

L’arredamento non è incluso nel prezzo di vendita, ma può essere trattato separatamente.

La villetta è disponibile da subito.

Mostra tutto

Nelle vicinanze

Trasporto pubblico Trasporto pubblico
stazione di Magenta
stazione di Magenta
2,5 Km
Via Oberdan (Corbetta)
Via Oberdan (Corbetta)
300 m
Trasporto pubblico
380 m
stazione di Corbetta-Santo Stefano Ticino
stazione di Corbetta-Santo Stefano Ticino
1,5 Km
Ricariche auto elettriche Ricariche auto elettriche
U2 Supermercato Magenta | EnelX
2,6 Km
Scuole Scuole
Istituto Professionale Vasco Mainardi
450 m
Scuola Primaria Villa Favorita
490 m
Scuola Secondaria di Primo Grado Simone da Corbetta
830 m
Scuola Primaria Aldo Moro
1,0 Km
Liceo scientifico statale Donato Bramante
1,3 Km
Farmacia Farmacia
Farmacia Comunale 1
240 m
Farmacia Chimica del dottor Berti Carlo & C. Sas
300 m
Farmacia Comunale 2
520 m
Farmacia del Corso
640 m
Farmacia Perre Rosario
750 m
Ospedali Ospedali
Ospedale Giuseppe Fornaroli
1,5 Km
Supermercati Supermercati
Penny
360 m
U2
380 m
Lidl
450 m
Aldi
610 m
Sigma Ok
630 m
Negozi Negozi
Negozi
170 m
OVS
400 m
Angolo del Pane
500 m
CVG Gold
570 m
Nuvola
1,8 Km
Bar Bar
Tiffany
150 m
Bar
190 m
Angolo Cafè
260 m
Bar dello Sport
280 m
Bar Isola
850 m
Ristoranti Ristoranti
Angolo 7b
210 m
Ristoranti
240 m
Sushi Club
400 m
Trattoria "Al Campanile"
640 m
Roadhouse Grill
650 m
Mostra tutto

Caratteristiche

Rif.:
61058778
Piano:
1 di 1 (Piano basso)
Box:
1
Balconi:
1
Camere da letto:
1
Arredamento:
Assente
Mostra tutto
Prezzo Prezzo
€ 397.000
Rata mutuo Rata mutuo
€ 1.830 / mese
Spese annue Spese annue
€ 0
Proponi il tuo prezzoProponi il tuo prezzo

Classe Energetica

A4
A4
A4
A4
A4
A4
A4
A4
A4
EP globale non rinnovabile:
1657.00 kW h/m² anno
EP invernale del fabbricato:
EP estiva del fabbricato:
Anno di costruzione:
2024
Riscaldamento:
Autonomo
Tipo impianto:
A pavimento
Tipo alimentazione:
Altro

Ti interessa visionare l'immobile?

Fissa un appuntamento  Fissa un appuntamento

Richiedi informazioni

* Questi campi sono obbligatori

Calcola il tuo mutuo

Semplice e senza impegno
Anticipo

( % )
Mutuo

( % )

pochi semplici passi

inserisci i tuoi dati
Questionario completato
Grazie per aver richiesto un appuntamento senza impegno con un nostro Consulente del Credito e Assicurativo.

Hai inserito correttamente tutti i dati necessari e a breve riceverai una e-mail con un link da convalidare per inviare i tuoi dati.
Affiliato
Studio Mantovani D.I.
Via Mazzini, 16 20011 Corbetta (MI)

Il nostro staff


  • Luca Mantovani
    Affiliato

  • Federica Cislaghi
    Responsabile

  • Manuela Oldani
    Coordinatrice

  • Raffella Castelli
    Collaboratrice

  • Luca Fadda
    Collaboratore

  • Valentina Ferrari
    Coordinatrice

  • Martina Pellegata
    Collaboratrice

  • Andrea Xotta
    Collaboratore
Via Mazzini, 16 20011 Corbetta (MI)
Zona: Corbetta
Mostra su mappa
Orari: DAL LUNEDI' AL VENERDI' 9.00-12.30 / 14.30-19.30. SABATO 09.00-12.30/ 14.30-19.30. DOMENICA SU APPUNTAMENTO.
Affiliato
Studio Mantovani D.I.
Via Mazzini, 16 20011 Corbetta (MI)

2025 Tecnocasa Franchising S.p.A. - P. IVA 08365160152 - Via Monte Bianco 60/A 20089 Rozzano (MI). Ogni agenzia ha un proprio titolare ed è autonoma. Privacy policy | Policy utilizzo | Cookie policy